티스토리 뷰

남산역 에일린의뜰 중소형 평형대의 초역세권아파트
남산역에 들어서는 남산역 에일린의뜰의 소식입니다 지역주택합인 이 아파트는 이미 신고필증을 마친 현장으로서 여러모로 강점을 가지고 있습니다

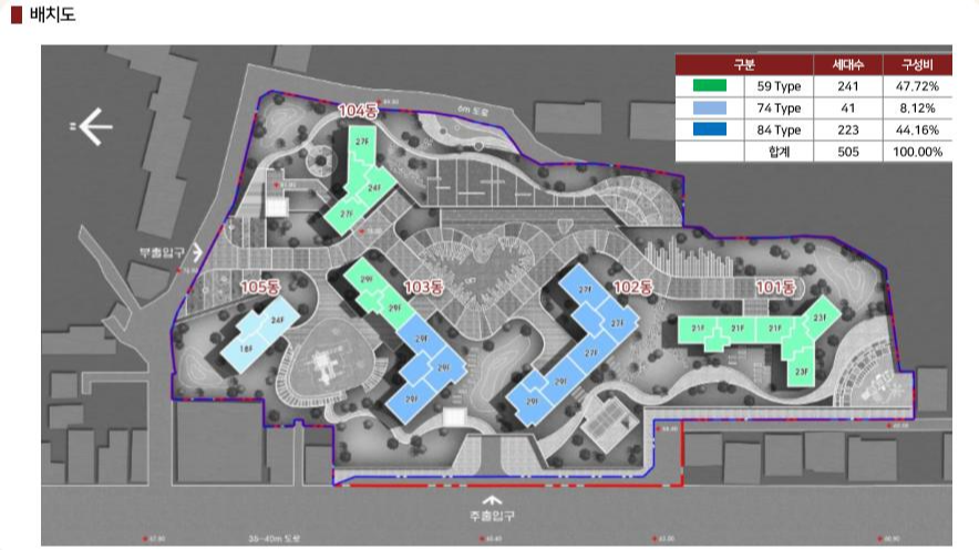
부산광역시에 위치한 동래구 남산동 379-8번지에 들어설 예정이며 지하 2층~지상 29층 5개동으로 완공될 예정입니다
약 606세대중 25평형이 241세대로 약 48%를 차지한다고 합니다 중소형 상품으로 젊은층에게 문의가 많이 오고 있는 상황입니다

주변으로 노후빌라들이 많이 존재하고 있는 상황이라 신규 아파트의 공급이 절실하게 느껴지는 상황에서 남산역 에일린의 뜰의 소식이 이 일대 거주 하시는 분들에게는 희소식으로 전해 졌을텐데요
최근 부동산 조정지역이 해제된 이후 물량이 빠르게 소진되고 있는 추세이기 때문에 좋은 층 , 좋은 향, 누구나 선호하는 인기 있는 호실을 선점 하시려면 서둘러 문의를 해보시는게 좋을 듯 합니다


교통, 교육, 생활인프라 모두 갖춘 남산역 에일린의 뜰
부동산 시장의 동향을 살펴보면 역주변의 신규물량은 어느곳에서나 인기가 좋습니다 그만큼 우리가 생활하는 부분에서 절대적으로 영향을 미치는 부분이 바로 교통이 아닐까 싶은데요 역세권매물은 어디서든 청약 마감1순위를 자랑합니다
우선 생활의 편의를 보장하기 때문에 임대를 하실때 공실의 위험도 없으며 시세차익도 크게 반영되는 부분이 있습니다 남산역 에일린의 뜰은 지하철 남산역, 범어역 사이에 위치하고 있어 더블 역세권이라고 말할 수 있을 뿐만 아니라 풍부한 생활인프라를 누릴 수 있는 곳입니다.

역세권의 중심으로 형성되어있는 상업시설과 주요 공공기관들을 편리하게 이용할 수 있는 환경일 뿐만 아니라 미래가치도 높게 평가 되고 있습니다
단순히 역과 가까운 것만 아니라 도시고속도로, 번영로를 이용하여 부산 전역으로 이동할 수 있을 뿐만 아니라 경부고속도로, 부산외곽고속도로의 접근성이 우수하기 때문에 인접지역으로의 이동도 편합니다.

또한 요즘에는 학세권 주거지를 많이 선호를 하시는데요 자녀를 키우고 있고 향후 자녀 계획이 있으신 젊은 부부분들이라면 1km 내외로 청룡초등학교 금정중학교가 위치해 있기 때문에 안심하고 학교를 보내실 수 있을 듯 합니다 또 부산외대, 부산대, 부산카톨릭 대 등 우수한 교육환경을 자랑하고 있습니다

뿐만 아니라 이곳 아파트를 기준으로 금정구청, 금정문화회관, 도서관, 보건소등을 비롯하여 이마트, 시장 등 다양한 인프라들을 부담없이 누릴 수 있기 때문에 삶의 질을 향상시킬 수 있다는 장점도 분명히 있습니다.

전 세대를 남향으로 배치하였기 때문에 보다 따사로운 햇살을 느낄 수 있는 분위기를 연출할 뿐만 아니라 동간거리를 충분히 확보하여 일조권과 우수한 채광을 누릴 수 있습니다 . 이로 인해 냉난방비에 대한 절감효과도 볼 수 있을거라 생각합니다 또 주부님들이 선호 하시는 구조인 거실과 주방이 구분되는 구조도 눈여겨 볼 만 합니다

단지내에는 입주민들이 이용할 수 있는 다양한 커뮤니티 시설들이 제공될 예정이기 때문에 이웃과 소통의 장이 될 수 있는 것은 물론이고 여유로움을 만끽할 수 있는 여가활동을 즐길 수 있다는 점도 큰 메리트로 다가옵니다
남산역 에일린의 뜰은 소형평형대에서는 보기 힘든 4베이 판상형 구조로 설계되어 있습니다 또 대형 팬트리 알파룸 등 특화공간이 제공됩니다
유니트 영상보기 클릭 ↓
전 세대 남향위주로 배치. 우수한 채광과 통풍을 누리실 수 있습니다
유니트 영상보기 클릭 ↓
더불어 팬트리를 비롯하여 드레스룸, 그리고 수납공간을 강화 하였습니다

남산역 에일린의 뜰의 가장 큰 장점은 주변 시세대비 낮은 모집가로 입주할 수 있다는 점입니다. 뿐만 아니라 초기 계약금 1000만원으로 부담이 없습니다
모두가 아는 기업이죠 글로벌 건설리더 아이에스동서에서 시공을 맡았기 때문에 더욱 믿음이 가는 부분입ㅇ니다
2020년 8월 조합창립총회 개최 예정, 2020년 9월 조합설립인가 예정, 2021년 11월 사업계획승인 예정, 2022년 5월 착공 예정, 2024년 12월 입주 예정에 있습니다
더 중요한 핵심은 높은 토지확보비율로 빠른 사업이 진행 가능하다라는 점과 이미 신고필증이 완료된 현장이라는 것이니다
교통과 교육, 그리고 생활인프라를 모두 갖춘곳 초역세권에 저렴한 입주가로 내집마련! 거주하기에도 좋은환경이기에 투자하는 입장에서도 미래가치를 가진 가치있는곳 남산에일린의뜰입니다
자세한 문의는 대표번호로 전화하시어 전문상담사와 자세한 상담을 받아보시길 바랍니다

'생활정보 Life information > 분양정보' 카테고리의 다른 글
| 서해선복선전철 당진 합덕 역세권 투자가치 정보 (0) | 2020.07.08 |
|---|---|
| 구서시그니처S 프리미엄 지금이기회! (0) | 2020.06.09 |
| 포천 모아엘가 청약 분양 전매제한 정보 (0) | 2020.05.31 |
| 논산 수린나 실거주와 투자가치 지닌 입주가능한 아파트 (0) | 2020.05.30 |
| 강서 대원칸티빌 청주 마지막공급가 문의 (0) | 2020.05.23 |